Top.Mail.Ru

Новомарусино

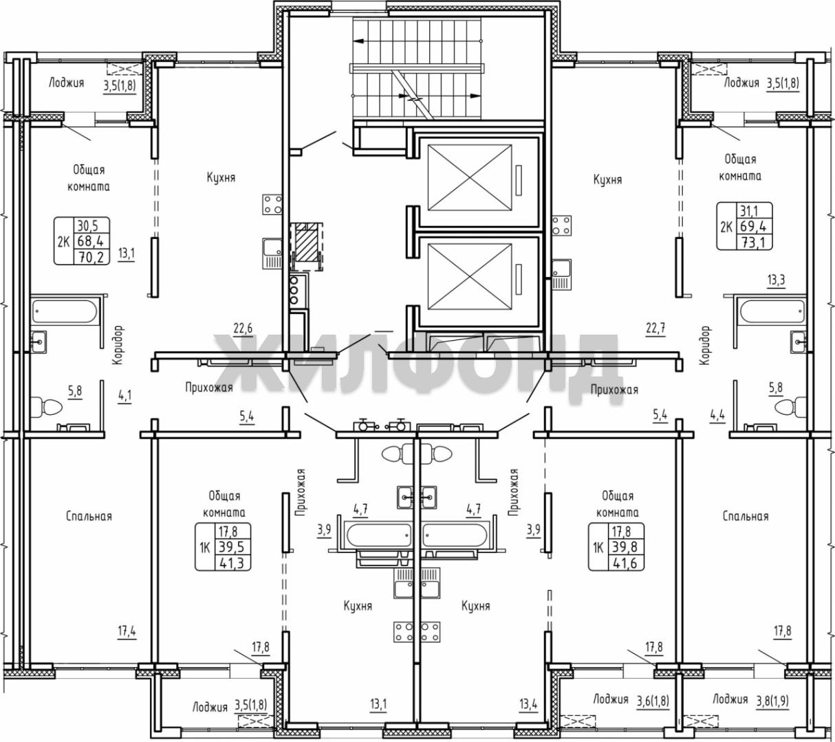
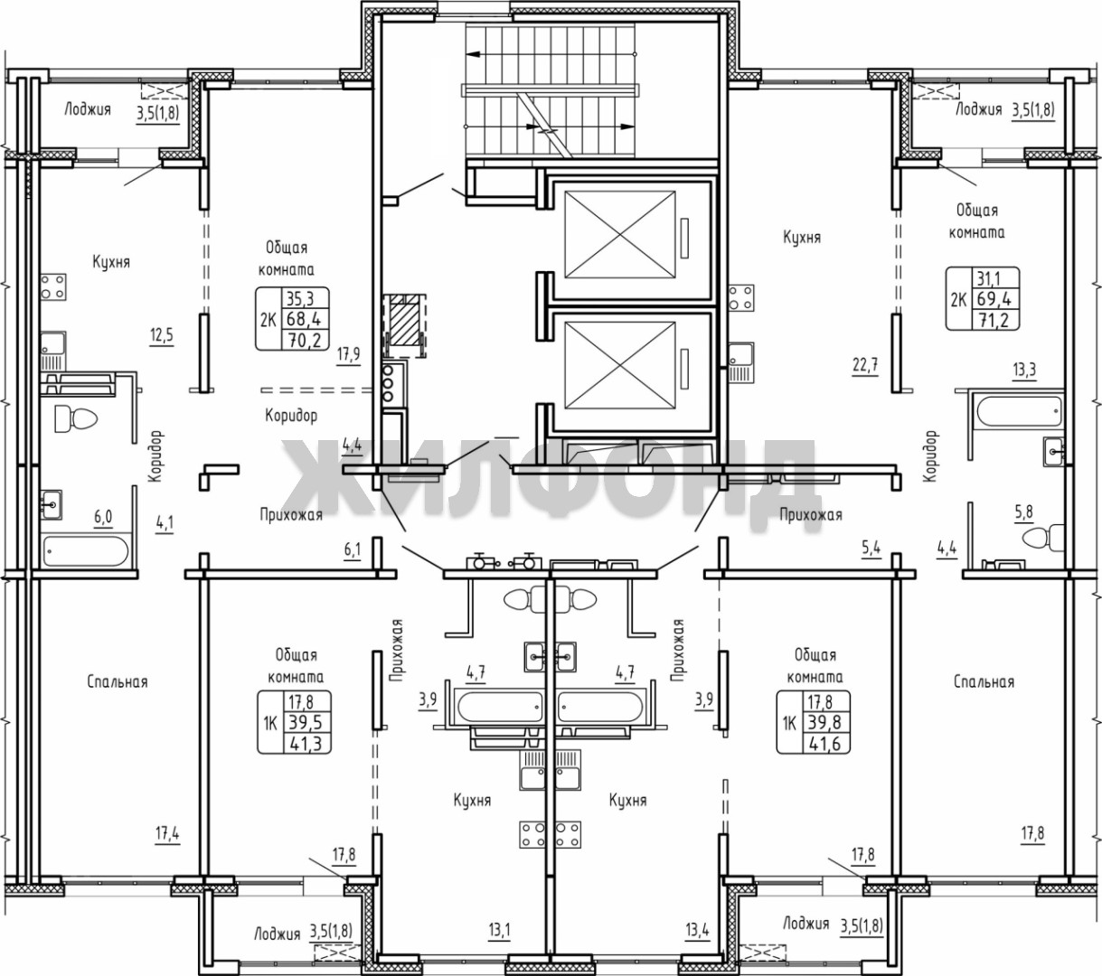
Жилой комплекс «Новомарусино» расположен в тихом месте у пересечения Колыванского шоссе и ул. Большой в 12,5 км от центра новосибирского Правобережья. Одна из особенностей микрорайона - смешанная этажность застройки: на территории расположены как малоэтажные кварталы, так и блок из нескольких строящихся 10-этажных жилых зданий. Желающим купить квартиру в «Новомарусино» стоит обратить внимание, что при строительстве объектов в микрорайоне были использованы высококачественный монолитный сибит, металлокаркас и навесные панели. Застройщик запланировал строительство на территории микрорайона двух детских садов и школы, а также масштабное благоустройство - организацию парков, зон отдыха и детских площадок. В «Новомарусино» реализовано подключение к центральным коммуникациям, а каждая очередь строительства оборудована отдельной газовой котельной. Предусмотрены квартиры улучшенной планировки.
Поделиться с друзьями

Варианты данного микрорайона в продаже

keys
Подписка на Жилфонд

Получайте уведомления о свежих новостях в своем браузере