Top.Mail.Ru

Тюленина, 5 стр Дом 5

Дом является частью ЖК Гренландия
Застройщик ООО СЗ СОЮЗ-ИНВЕСТ
Группа компаний Союз
Срок сдачи 2026
Очередь Дом 5
Квартир на продажу 52 (посмотреть)

Разрешение на строительство № 54-35-149-2024 от 18.09.2024

Основные характеристики

Класс недвижимости Комфорт

Материал стен Монолит

Тип отделки 1 вариант

Свободная планировка Нет

Количество этажей 16

Количество квартир 352

Жилая площадь, м2 18 493

Высота потолков, м 2,9 - 3,4

Благоустройство двора

Велосипедные дорожки Есть

Количество детских площадок 3

Количество спортивных площадок 2

Количество площадок для сбора мусора 2

Парковочное пространство

Количество мест в паркинге Нет

Гостевые места на придомовой территории 26

Гостевые места вне придомовой территории 7

Безбарьерная среда

Наличие пандуса Есть

Наличие понижающих площадок Есть

Количество инвалидных подъемников Нет

Наличие лифтов в доме

Количество подъездов 6

Количество пассажирских лифтов Нет

Количество грузовых и грузопассажирских лифтов 10

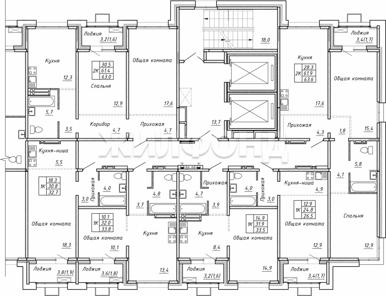
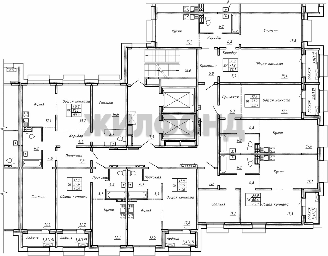
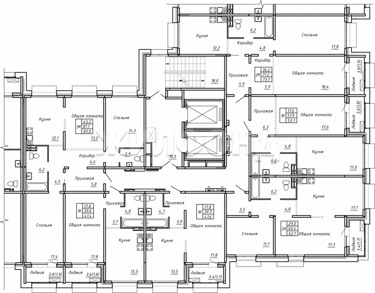
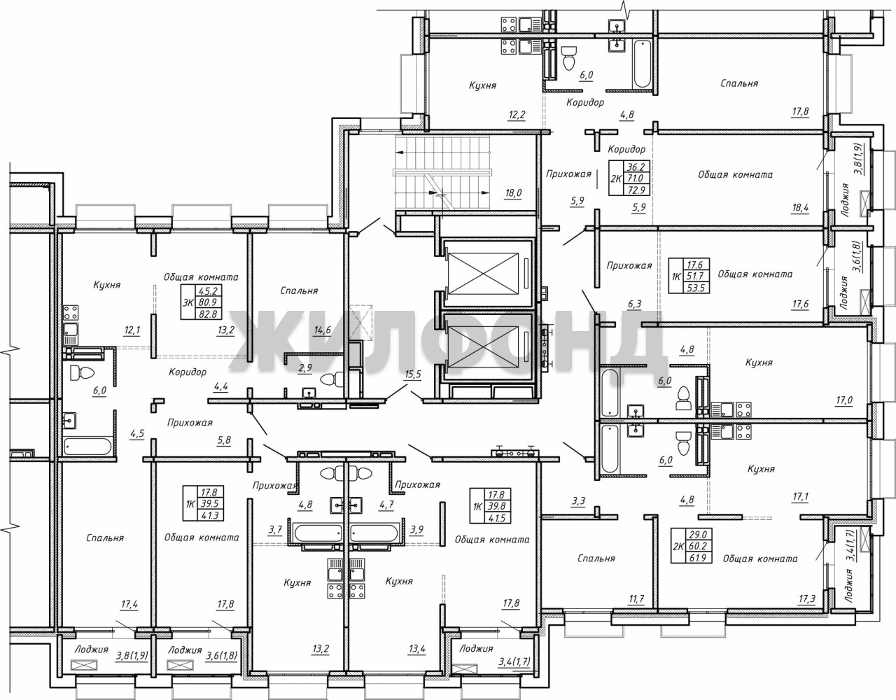
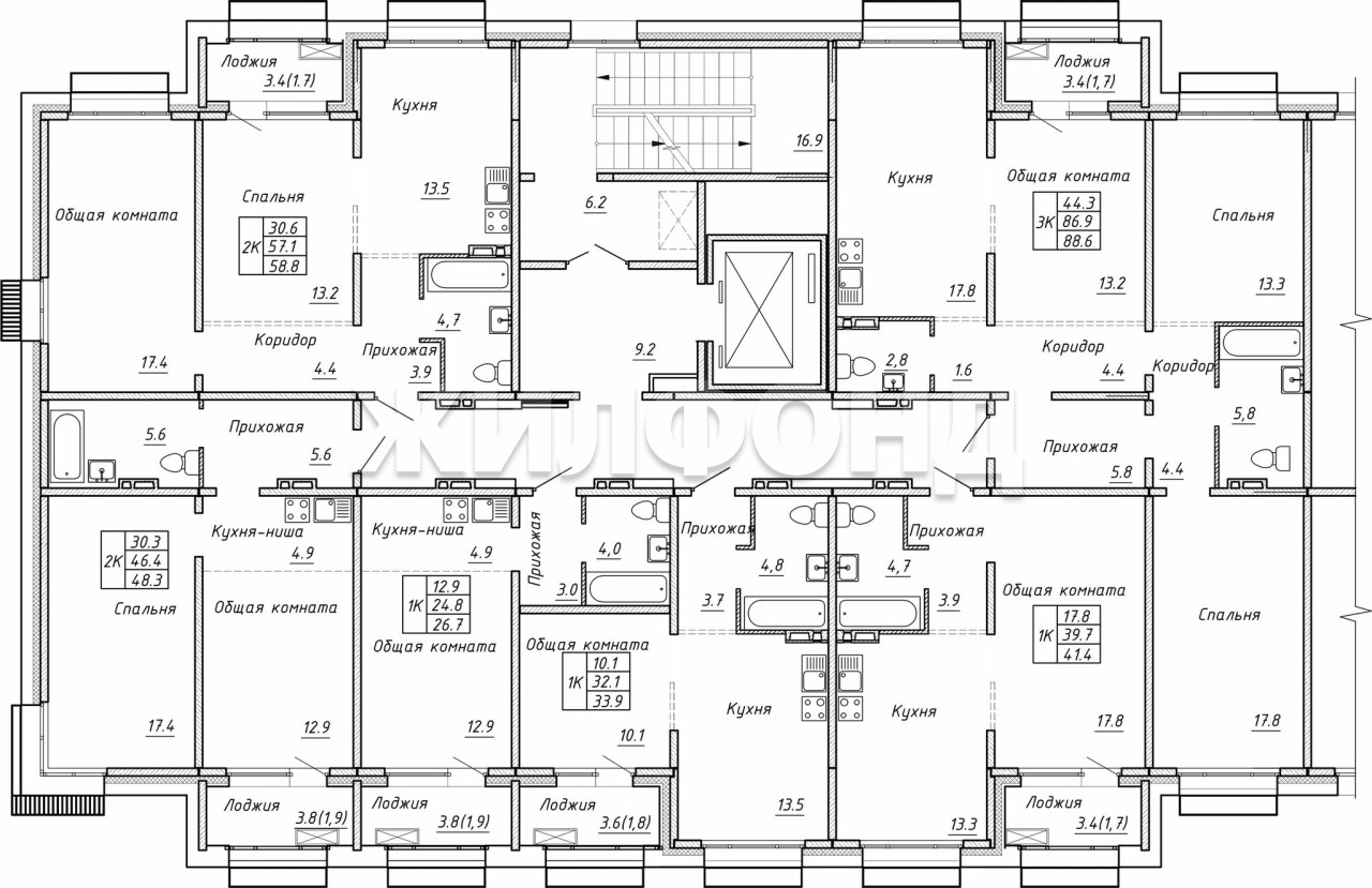
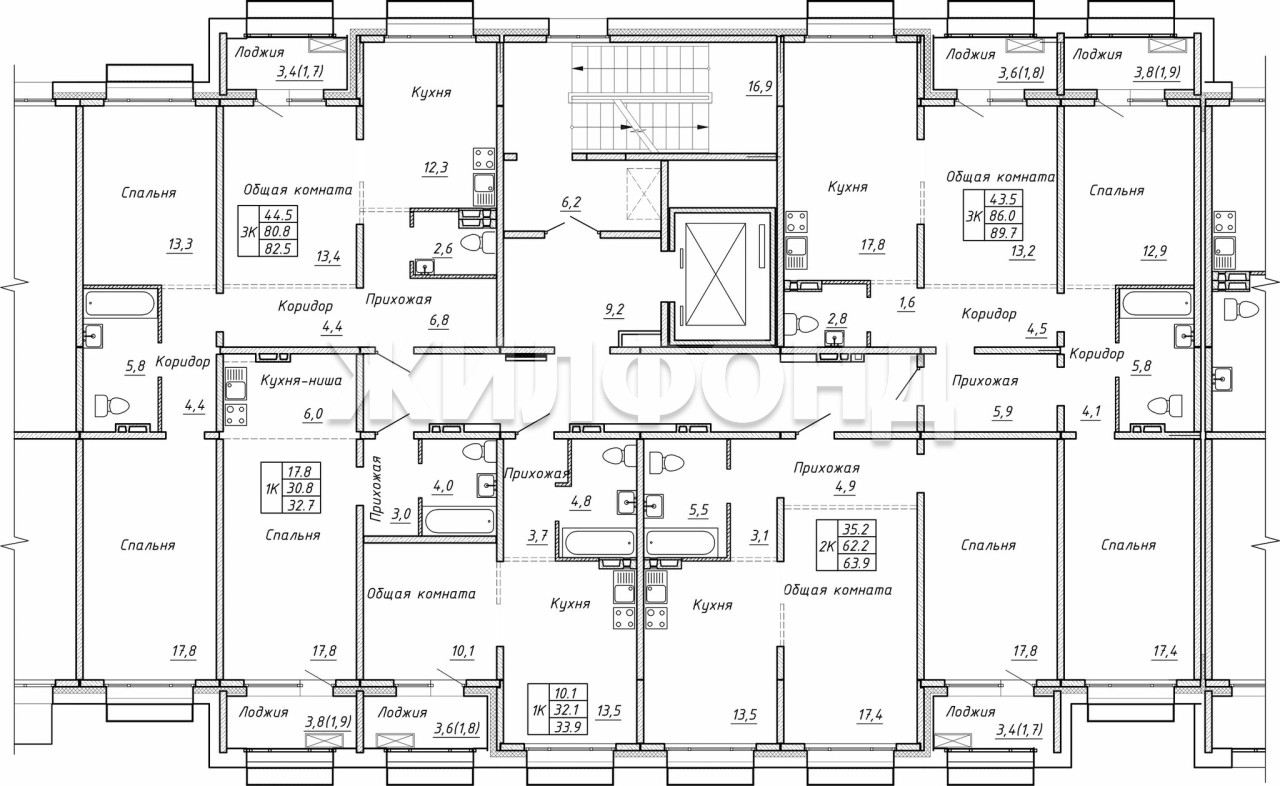
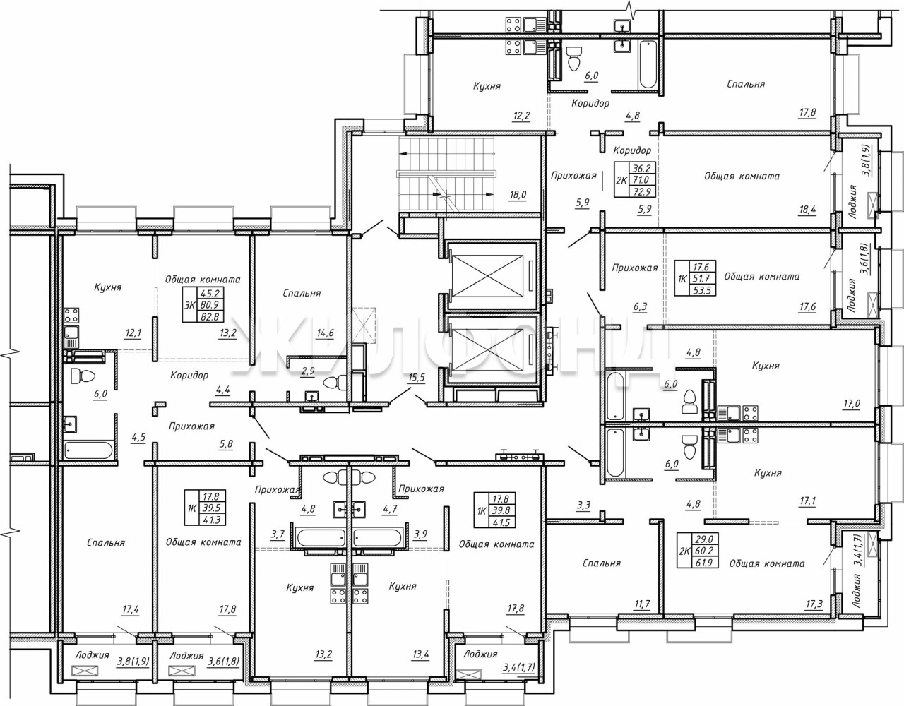
Жилой комплекс спроектирован в стиле скандинавской эстетики. Архитектура, благоустройство и инфраструктура объединены в целостное функциональное пространство. Корпус переменной этажности от 9 до 15 этажей выполнен по монолитной технологии с комбинированной отделкой фасадов. Просторные входные группы имеют сквозной проход, а в подъездах установлены бесшумные пассажирские и грузовые лифты.

В проекте представлены студии и квартиры с 1–3 комнатами. Высота потолков варьируется от 2,9 до 3,4 метров. В помещениях предусмотрены увеличенные окна, базовая отделка выполнена в формате подчистовой. Установлены металлическая входная дверь, розетки и выключатели, радиаторы отопления, оконные конструкции с двухкамерным стеклопакетом и пятикамерным профилем. Стены выровнены и оштукатурены.

По желанию можно заказать чистовую отделку с мебелью.

Читать полностью
Этаж Квартиры
15
33 м2
4 750 000 ₽
41 м2
5 850 000 ₽
41 м2
5 850 000 ₽
63 м2
7 350 000 ₽
14
41 м2
5 800 000 ₽
41 м2
5 800 000 ₽
13
41 м2
5 800 000 ₽
41 м2
5 800 000 ₽
12
33 м2
4 700 000 ₽
41 м2
5 850 000 ₽
73 м2
7 950 000 ₽
11
41 м2
5 800 000 ₽
41 м2
5 800 000 ₽
54 м2
6 750 000 ₽
73 м2
7 850 000 ₽
10
41 м2
5 750 000 ₽
73 м2
7 850 000 ₽
9
33 м2
4 800 000 ₽
41 м2
5 650 000 ₽
41 м2
5 750 000 ₽
65 м2
7 350 000 ₽
8
33 м2
4 750 000 ₽
41 м2
5 800 000 ₽
54 м2
6 650 000 ₽
7
41 м2
5 750 000 ₽
6
42 м2
5 750 000 ₽
54 м2
6 650 000 ₽
5
83 м2
11 237 000 ₽
4
54 м2
6 660 000 ₽
83 м2
11 154 000 ₽
83 м2
11 237 000 ₽
3
33 м2
4 600 000 ₽
41 м2
5 750 000 ₽
54 м2
6 660 000 ₽
83 м2
11 154 000 ₽
83 м2
11 237 000 ₽
2
42 м2
5 750 000 ₽
54 м2
6 660 000 ₽
63 м2
7 300 000 ₽
64 м2
9 077 000 ₽
83 м2
11 154 000 ₽
83 м2
11 237 000 ₽
90 м2
12 000 000 ₽
1
41 м2
5 900 000 ₽
49 м2
6 200 000 ₽
48 м2
6 200 000 ₽
55 м2
6 705 000 ₽
54 м2
7 100 000 ₽
41 м2
6 100 000 ₽
66 м2
7 200 000 ₽
64 м2
7 700 000 ₽
64 м2
7 700 000 ₽
keys
Подписка на Жилфонд

Получайте уведомления о свежих новостях в своем браузере