Top.Mail.Ru

Большая, 1 стр Дом Бирюза-1 оч 2

Дом является частью ЖК Самоцветы
Застройщик ООО СЗ СОЮЗ-ИНВЕСТ
Группа компаний Союз
Срок сдачи 2026
Очередь Дом Бирюза-1 оч 2
Квартир на продажу 80 (посмотреть)

Разрешение на строительство № 54-35-214-2024 от 09.12.2024

Основные характеристики:

Класс недвижимости- Комфорт

Материал стен - Монолит

Тип отделки - 1 вариант

Свободная планировка - Нет

Количество этажей - 15

Количество квартир - 288

Жилая площадь, м2 16 156

Высота потолков, м 2,69

Благоустройство двора:

Велосипедные дорожки - Есть

Количество детских площадок - 3

Количество спортивных площадок - 2

Количество площадок для сбора мусора - 2

Парковочное пространство:

Количество мест в паркинге - Нет

Гостевые места на придомовой территории - 14

Гостевые места вне придомовой территории - 5

Безбарьерная среда:

Наличие пандуса - Есть

Наличие понижающих площадок - Есть

Количество инвалидных подъемников - Нет

Количество подъездов - 5

Количество пассажирских лифтов - Нет

Количество грузовых и грузопассажирских лифтов - 10

Архитектурное решение фасадов выполнено по самым современным технологиям.

Все это обеспечивают высокий уровень естественной освещенности квартир и визуальный контакт с окружающей средой.

Дома возводятся по сборно-монолитной технологии.

Надежную защиту зданий от влаги и ветра, перепада температур, улучшить шумоизоляцию внутреннего пространства позволяет технология вентилируемого фасада.

ЖК «Самоцветы» расположен по улице «Большая», Ленинского района, города Новосибирска.

Вблизи жилого комплекса расположены кафе, продуктовые и строительные магазины, аптеки, а так же торговый центр в котором находятся – крупный продуктовый магазин, салоны красоты, сервисные центры и др.

А в радиусе 2х км расположились тренажерные залы и большое обилие магазинов способных закрыть любые потребности.

«Самоцветы» - это удивительное место, где ценятся и почитаются семейные ценности, где каждый уголок пронизан теплом и уютом.

Здесь каждый день наполнен радостью ласковых улыбок близких людей и звонких детских голосов.

Читать полностью
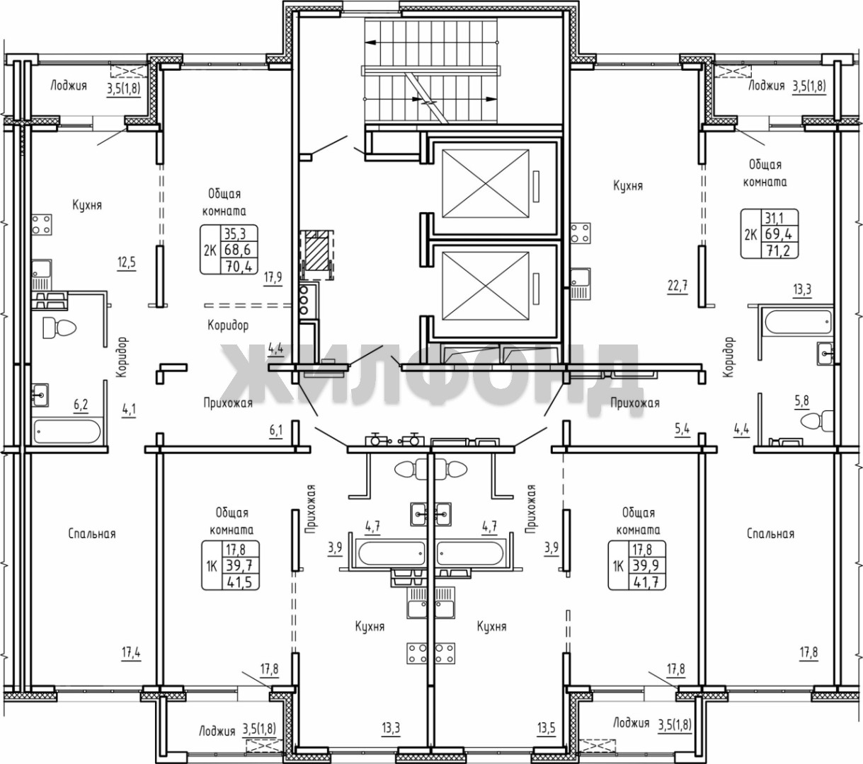
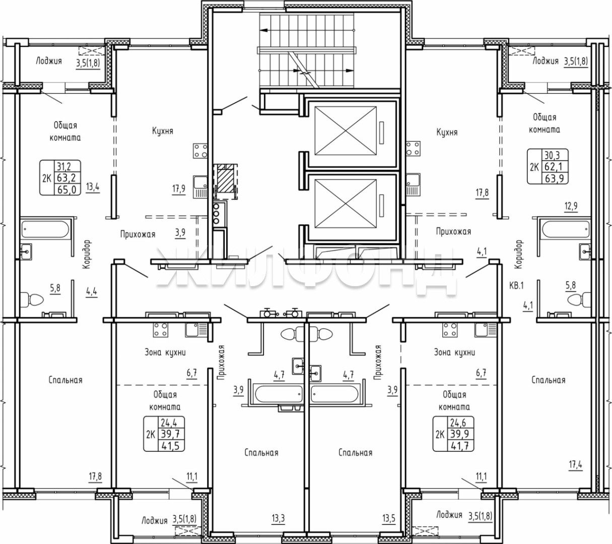
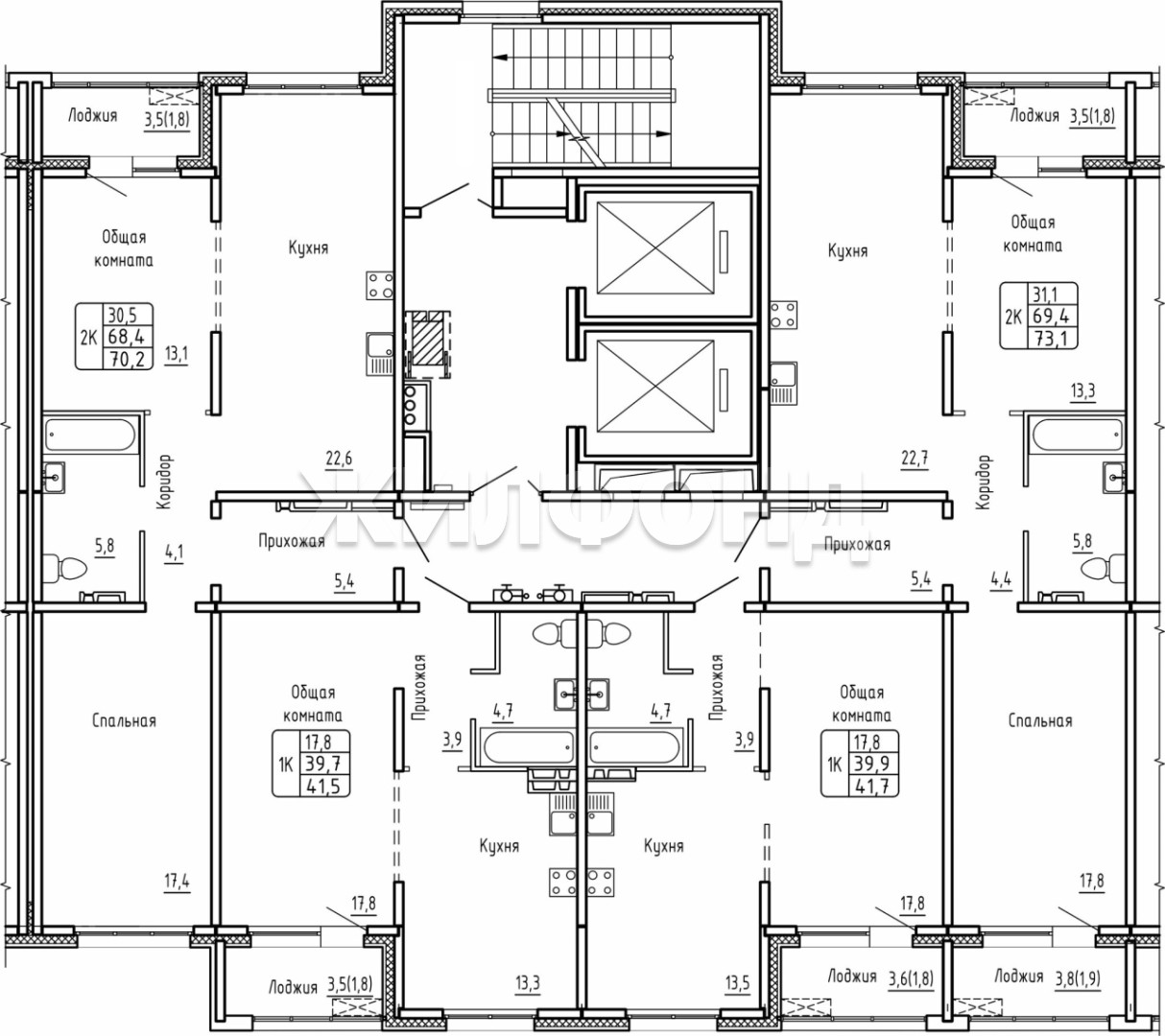
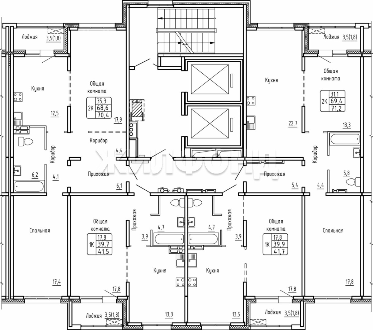
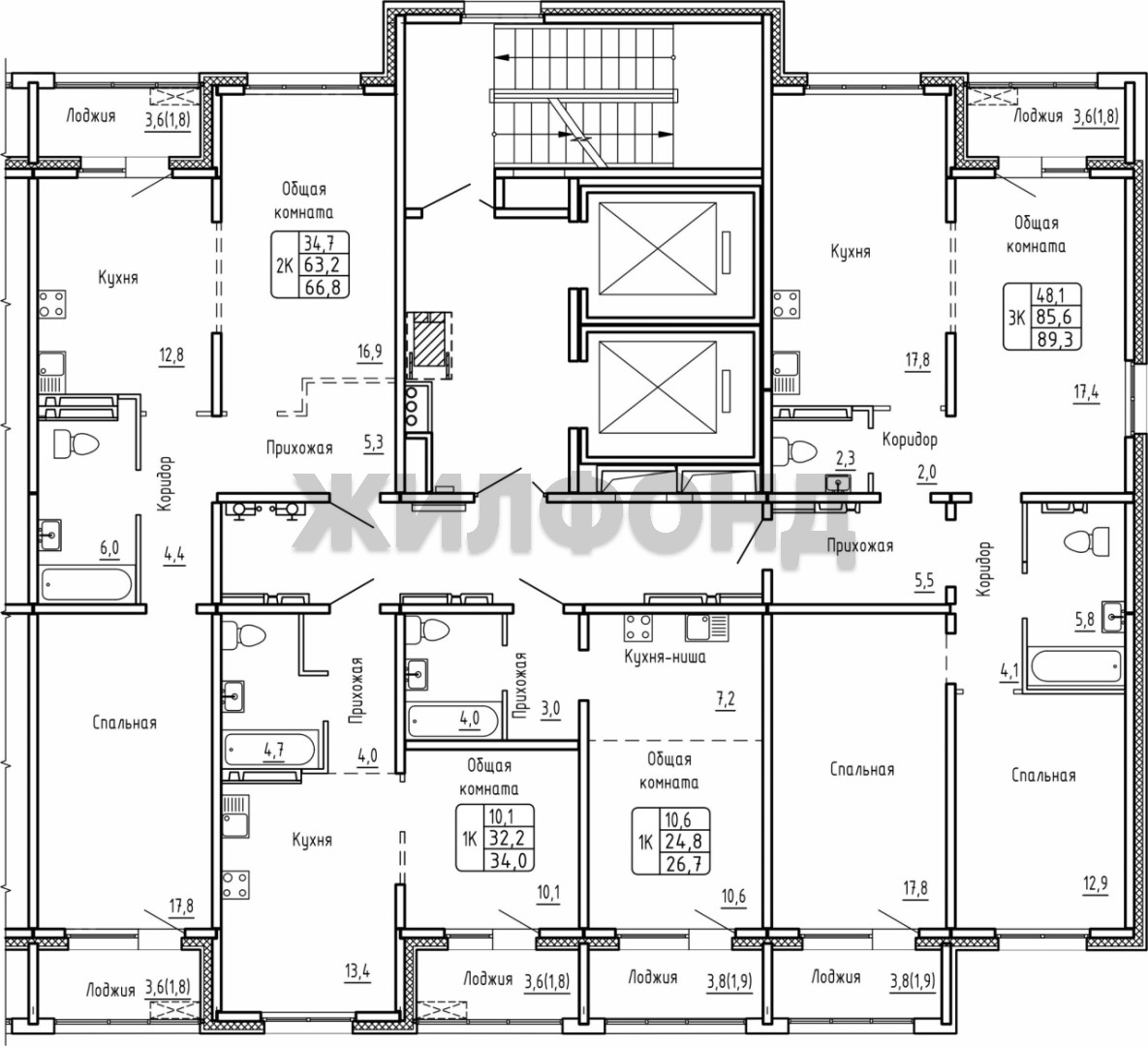
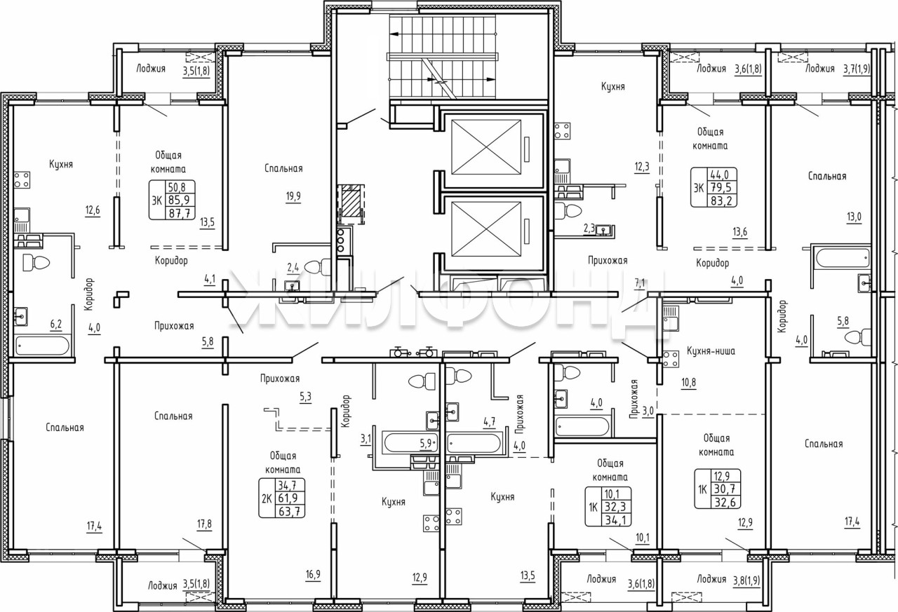
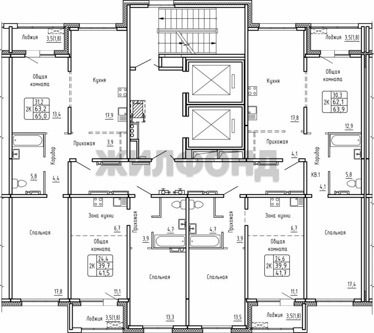
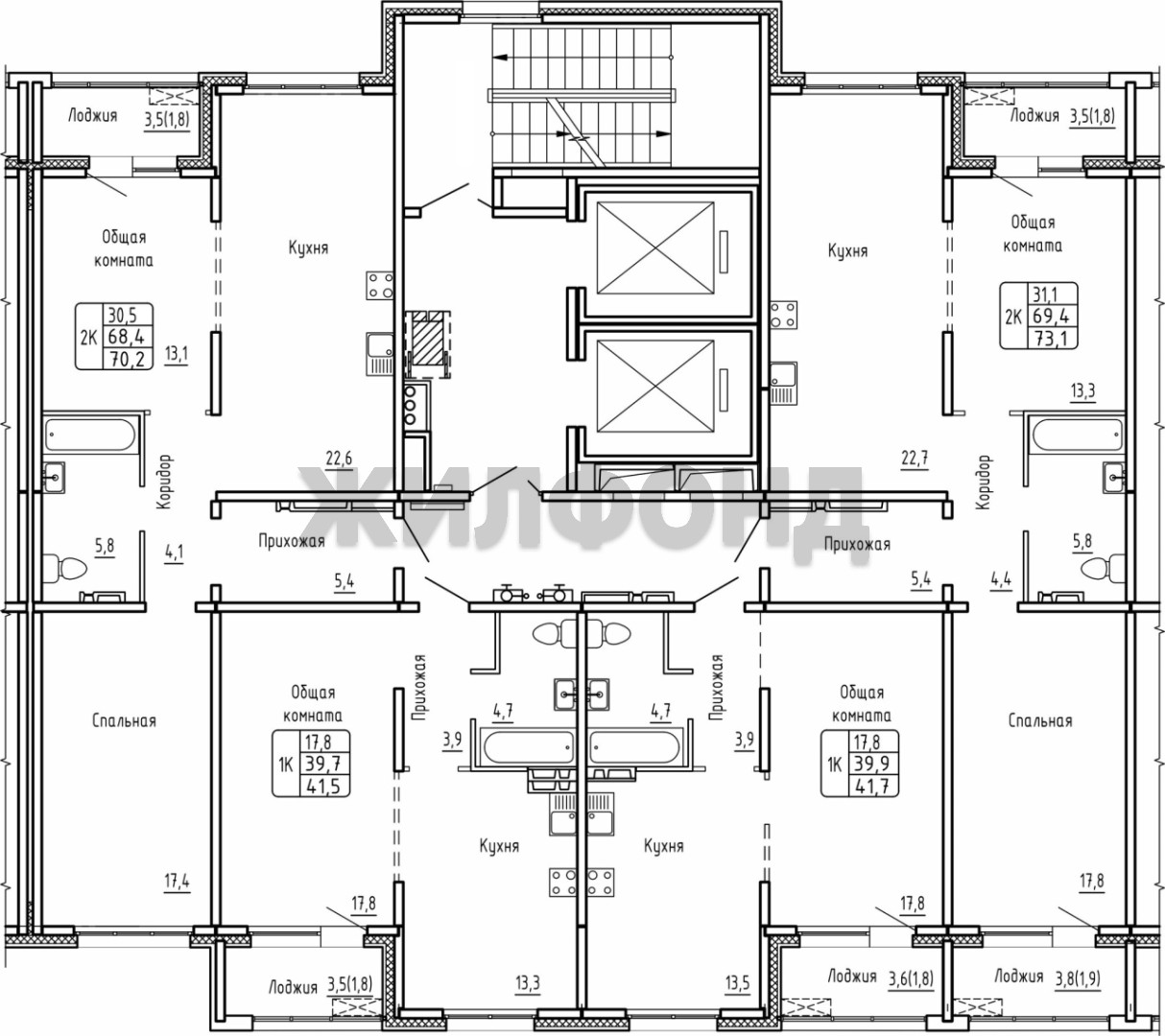
Этаж Квартиры
14
42 м2
4 500 000 ₽
41 м2
4 500 000 ₽
42 м2
4 550 000 ₽
41 м2
4 550 000 ₽
42 м2
4 500 000 ₽
42 м2
4 500 000 ₽
64 м2
6 350 000 ₽
71 м2
6 800 000 ₽
70 м2
6 800 000 ₽
13
42 м2
4 500 000 ₽
64 м2
6 300 000 ₽
64 м2
6 350 000 ₽
67 м2
6 400 000 ₽
65 м2
6 450 000 ₽
70 м2
6 750 000 ₽
12
64 м2
6 250 000 ₽
64 м2
6 300 000 ₽
71 м2
6 750 000 ₽
70 м2
6 750 000 ₽
89 м2
8 200 000 ₽
11
64 м2
6 250 000 ₽
65 м2
6 400 000 ₽
71 м2
6 700 000 ₽
83 м2
7 900 000 ₽
10
65 м2
6 400 000 ₽
67 м2
6 400 000 ₽
70 м2
6 550 000 ₽
73 м2
6 700 000 ₽
70 м2
6 750 000 ₽
89 м2
7 550 000 ₽
88 м2
8 350 000 ₽
9
42 м2
4 450 000 ₽
64 м2
6 250 000 ₽
65 м2
6 350 000 ₽
70 м2
6 550 000 ₽
70 м2
6 750 000 ₽
8
67 м2
6 350 000 ₽
70 м2
6 500 000 ₽
70 м2
6 700 000 ₽
89 м2
7 800 000 ₽
7
70 м2
6 500 000 ₽
73 м2
6 650 000 ₽
70 м2
6 700 000 ₽
89 м2
7 500 000 ₽
83 м2
7 900 000 ₽
6
73 м2
6 650 000 ₽
70 м2
6 650 000 ₽
67 м2
8 350 000 ₽
71 м2
8 455 000 ₽
70 м2
8 471 000 ₽
88 м2
8 350 000 ₽
89 м2
10 926 000 ₽
5
70 м2
6 650 000 ₽
65 м2
8 170 000 ₽
67 м2
8 350 000 ₽
70 м2
8 421 000 ₽
71 м2
8 455 000 ₽
89 м2
10 926 000 ₽
4
67 м2
6 350 000 ₽
73 м2
6 600 000 ₽
70 м2
6 650 000 ₽
65 м2
8 115 000 ₽
70 м2
8 421 000 ₽
71 м2
8 455 000 ₽
3
67 м2
6 350 000 ₽
73 м2
6 600 000 ₽
70 м2
6 650 000 ₽
65 м2
8 115 000 ₽
70 м2
8 371 000 ₽
71 м2
8 455 000 ₽
2
67 м2
6 350 000 ₽
64 м2
7 890 000 ₽
65 м2
8 115 000 ₽
70 м2
8 471 000 ₽
71 м2
8 555 000 ₽
83 м2
7 400 000 ₽
1
65 м2
6 300 000 ₽
72 м2
6 300 000 ₽
83 м2
7 350 000 ₽
93 м2
8 500 000 ₽
keys
Подписка на Жилфонд

Получайте уведомления о свежих новостях в своем браузере