Top.Mail.Ru

Связистов, 13/1

Дом является частью ЖК Квартет
Застройщик ООО СЗ ГРАДИНВЕСТ
Группа компаний Союз
Срок сдачи Сдан
Квартир на продажу 1 (посмотреть)

Разрешение на ввод №54-35-143-2025 от 06.11.2025

Основные характеристики

Класс недвижимости Комфорт

Материал стен Монолит

Тип отделки 1 вариант

Свободная планировка Нет

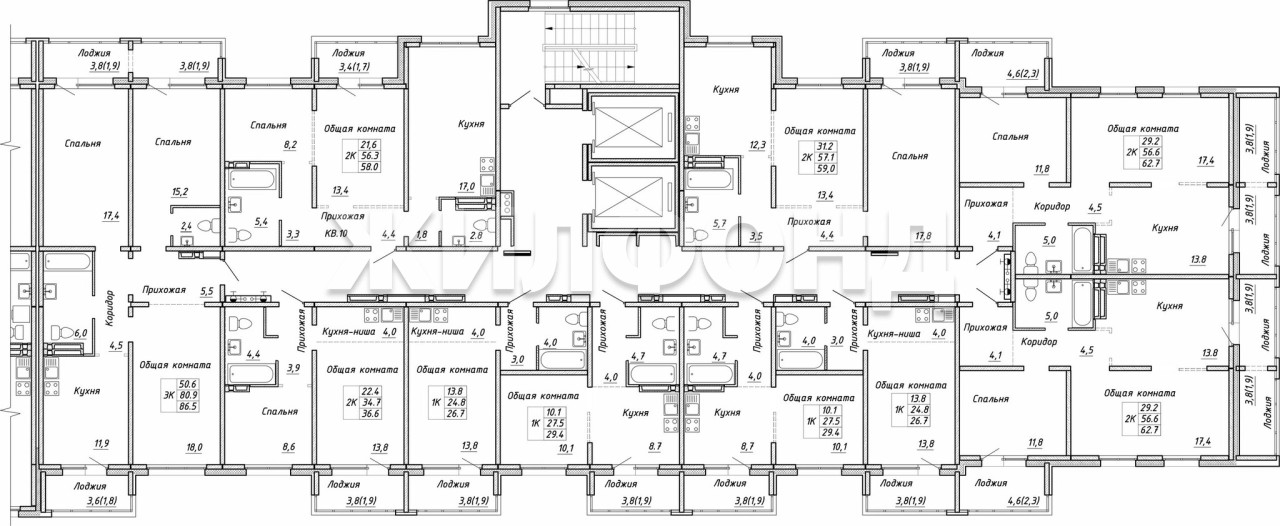
Количество этажей 18

Количество квартир 338

Жилая площадь, м2 16 224

Высота потолков, м 2,73

Благоустройство двора

Велосипедные дорожки Есть

Количество детских площадок 1

Количество спортивных площадок 1

Количество площадок для сбора мусора 1

Парковочное пространство

Количество мест в паркинге Нет

Гостевые места на придомовой территории 5

Гостевые места вне придомовой территории Нет

Безбарьерная среда

Наличие пандуса Есть

Наличие понижающих площадок Есть

Количество инвалидных подъемников Нет

Наличие лифтов в доме

Количество подъездов 2

Количество пассажирских лифтов 2

Количество грузовых

и грузопассажирских лифтов 2

Комплекс расположен в Ленинском районе с динамично развивающейся инфраструктурой: рядом Спорткомплекс Заря , торговые центры Заря и Ягода , в пешей доступности находится Троицкий сквер и Троицкий собор, близость учебных заведений: школа №89, детский сад №133 и №415.

Удобная транспортная развязка. До метро 17 минут на машине.

Проектом предусмотрено благоустройство территории. На дворовой территории предусмотрено размещение площадок для отдыха взрослых и отдыха маломобильных групп населения с плиточным покрытием, площадки для контейнеров твердых бытовых отходов и стоянки автомобилей с асфальтобетонным покрытием. Площадка для выгула собак размещена в границах квартала в радиусе доступности 500 м. Покрытие игровых детских игровых площадок сертифицированное искусственное резиновое. Предусмотрена установка малых архитектурных форм (скамьи, урны, оборудование детских, спортивных и хозяйственных площадок).

На свободной от застройки и покрытий территории озеленение путем посева газонов из многолетних трав и разбивки цветников с подсыпкой растительного грунта слоем 0,20 м в участки озеленения.

На прилегающей к жилому дому территории обеспечен беспрепятственный доступ маломобильных групп населения ко всем элементам благоустройства и входам в здание.

Читать полностью
Этаж Квартиры
2
87 м2
7 800 000 ₽
keys
Подписка на Жилфонд

Получайте уведомления о свежих новостях в своем браузере