Top.Mail.Ru

Большая, 2 стр Дом Бирюза-2 оч 1

Дом является частью ЖК Самоцветы
Застройщик ООО СЗ СОЮЗ-ИНВЕСТ
Группа компаний Союз
Срок сдачи 2026
Очередь Дом Бирюза-2 оч 1
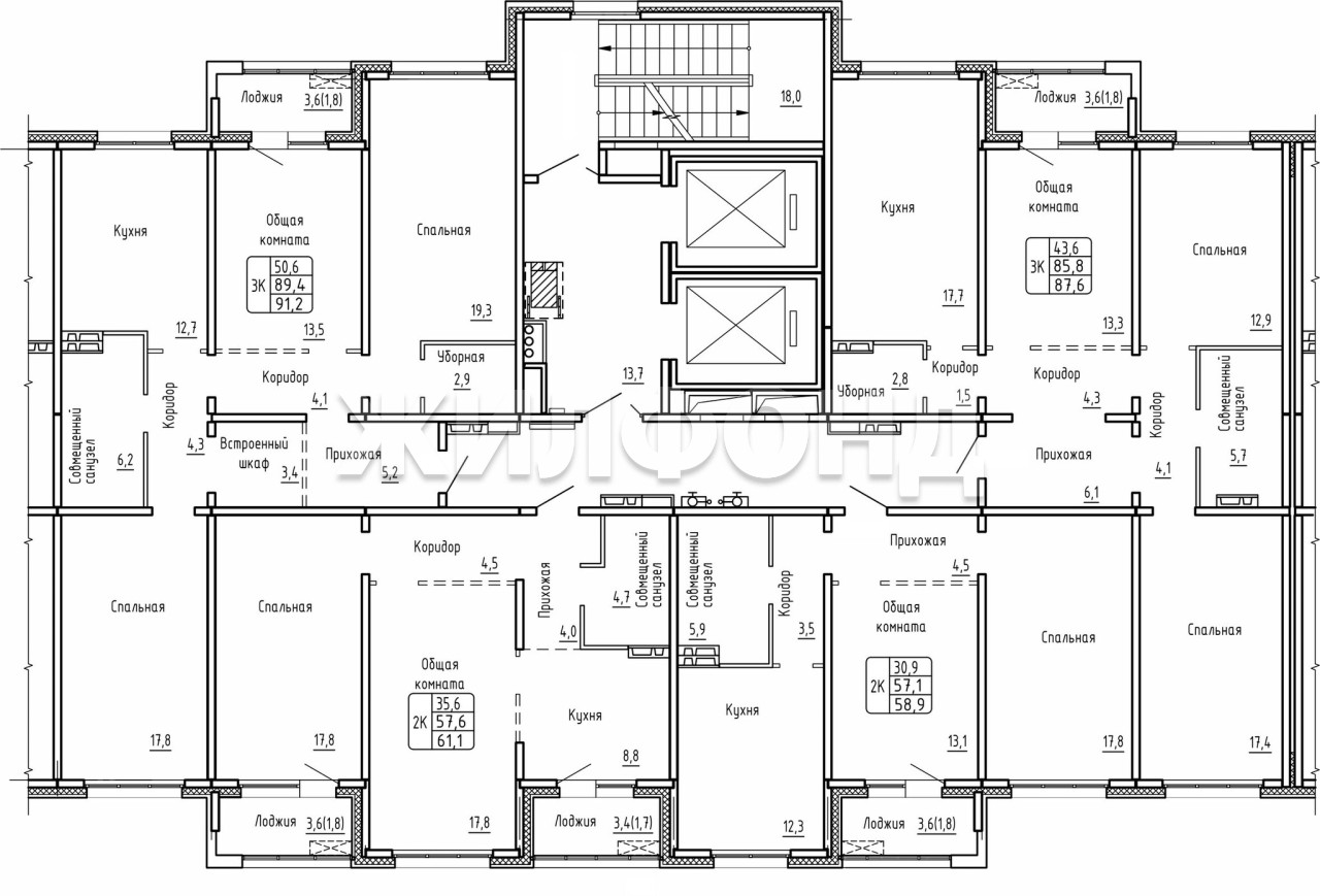
Квартир на продажу 84 (посмотреть)

Разрешение на строительство № 54-35-57-2024 от 22.04.2024

Основные характеристики:

Класс недвижимости - Комфорт

Материал стен - Монолит

Тип отделки - 1 вариант

Свободная планировка - Нет

Количество этажей - 18

Количество квартир - 480

Жилая площадь, м2 27 917

Высота потолков, м 2,69

Благоустройство двора:

Велосипедные дорожки - Есть

Количество детских площадок - 3

Количество спортивных площадок - 2

Количество площадок для сбора мусора - 2

Парковочное пространство:

Количество мест в паркинге - Нет

Гостевые места на придомовой территории - 14

Гостевые места вне придомовой территории - 5

Безбарьерная среда:

Наличие пандуса - Есть

Наличие понижающих площадок - Есть

Количество инвалидных подъемников - Нет

Количество подъездов - 6

Количество пассажирских лифтов - Нет

Количество грузовых и грузопассажирских лифтов - 12

Архитектурное решение фасадов выполнено по самым современным технологиям.

Все это обеспечивают высокий уровень естественной освещенности квартир и визуальный контакт с окружающей средой.

Дома возводятся по сборно-монолитной технологии.

Надежную защиту зданий от влаги и ветра, перепада температур, улучшить шумоизоляцию внутреннего пространства позволяет технология вентилируемого фасада.

ЖК «Самоцветы» расположен по улице «Большая», Ленинского района, города Новосибирска.

Вблизи жилого комплекса расположены кафе, продуктовые и строительные магазины, аптеки, а так же торговый центр в котором находятся – крупный продуктовый магазин, салоны красоты, сервисные центры и др.

А в радиусе 2х км расположились тренажерные залы и большое обилие магазинов способных закрыть любые потребности.

«Самоцветы» - это удивительное место, где ценятся и почитаются семейные ценности, где каждый уголок пронизан теплом и уютом.

Здесь каждый день наполнен радостью ласковых улыбок близких людей и звонких детских голосов.

Читать полностью
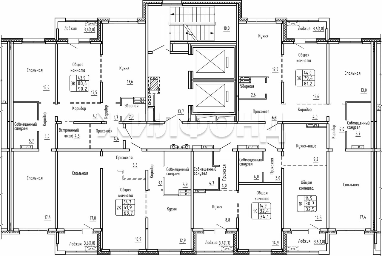
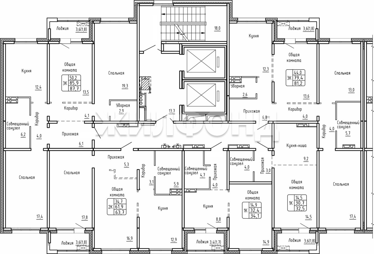
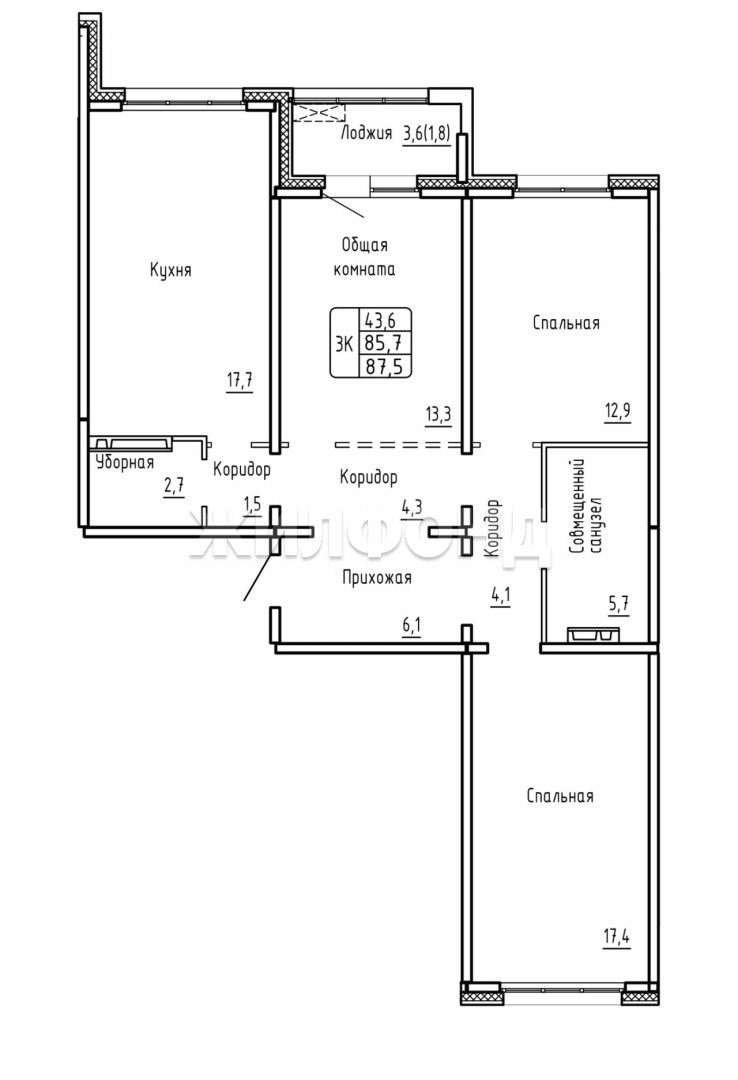
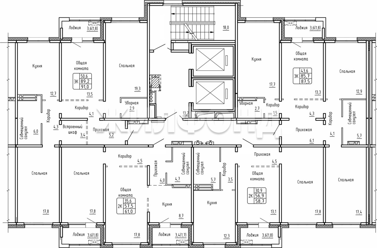
Этаж Квартиры
17
49 м2
5 000 000 ₽
61 м2
6 050 000 ₽
59 м2
7 100 000 ₽
88 м2
8 750 000 ₽
16
53 м2
5 500 000 ₽
59 м2
5 900 000 ₽
61 м2
6 000 000 ₽
62 м2
6 400 000 ₽
64 м2
6 500 000 ₽
82 м2
7 550 000 ₽
15
59 м2
5 850 000 ₽
61 м2
5 950 000 ₽
62 м2
6 350 000 ₽
14
59 м2
5 850 000 ₽
59 м2
5 900 000 ₽
61 м2
5 950 000 ₽
62 м2
6 350 000 ₽
64 м2
6 450 000 ₽
59 м2
7 050 000 ₽
87 м2
8 740 000 ₽
13
59 м2
5 800 000 ₽
59 м2
5 850 000 ₽
62 м2
6 350 000 ₽
64 м2
6 350 000 ₽
64 м2
6 450 000 ₽
82 м2
7 500 000 ₽
88 м2
8 350 000 ₽
12
64 м2
6 400 000 ₽
81 м2
7 750 000 ₽
91 м2
7 850 000 ₽
90 м2
9 000 000 ₽
11
59 м2
5 000 000 ₽
61 м2
5 950 000 ₽
62 м2
6 350 000 ₽
10
64 м2
6 350 000 ₽
81 м2
7 750 000 ₽
9
61 м2
5 900 000 ₽
62 м2
6 300 000 ₽
64 м2
6 300 000 ₽
64 м2
6 400 000 ₽
81 м2
7 650 000 ₽
81 м2
7 700 000 ₽
88 м2
8 313 000 ₽
8
56 м2
5 150 000 ₽
61 м2
5 900 000 ₽
64 м2
6 300 000 ₽
64 м2
6 300 000 ₽
64 м2
6 400 000 ₽
82 м2
7 500 000 ₽
91 м2
7 800 000 ₽
7
64 м2
6 300 000 ₽
88 м2
7 850 000 ₽
6
64 м2
6 450 000 ₽
88 м2
7 550 000 ₽
88 м2
8 350 000 ₽
5
61 м2
5 900 000 ₽
64 м2
6 450 000 ₽
59 м2
7 000 000 ₽
88 м2
7 750 000 ₽
4
64 м2
6 450 000 ₽
59 м2
7 000 000 ₽
88 м2
7 750 000 ₽
91 м2
7 850 000 ₽
3
59 м2
7 000 000 ₽
59 м2
7 700 000 ₽
90 м2
7 800 000 ₽
81 м2
8 120 000 ₽
88 м2
8 350 000 ₽
2
59 м2
7 650 000 ₽
59 м2
7 730 000 ₽
88 м2
8 300 000 ₽
88 м2
10 200 000 ₽
1
59 м2
5 700 000 ₽
59 м2
5 700 000 ₽
64 м2
5 700 000 ₽
62 м2
6 150 000 ₽
66 м2
6 500 000 ₽
82 м2
7 350 000 ₽
88 м2
7 500 000 ₽
89 м2
7 500 000 ₽
keys
Подписка на Жилфонд

Получайте уведомления о свежих новостях в своем браузере