Top.Mail.Ru

Приморская, 15 с1 Дом 1

Дом является частью ЖК Черемушки на Приморской
Застройщик ООО СЗ СИБИНВЕСТСТРОЙ
Группа компаний Оловозаводская
Срок сдачи 2026
Очередь Дом 1
Квартир на продажу 31 (посмотреть)

Разрешение на строительство № 54-RU54303000-202-2021 от 30.09.2021

ОСНОВНЫЕ ХАРАКТЕРИСТИКИ

Класс недвижимости Типовой

Материал стен Монолит-кирпич

Тип отделки Без отделки

Свободная планировка Нет

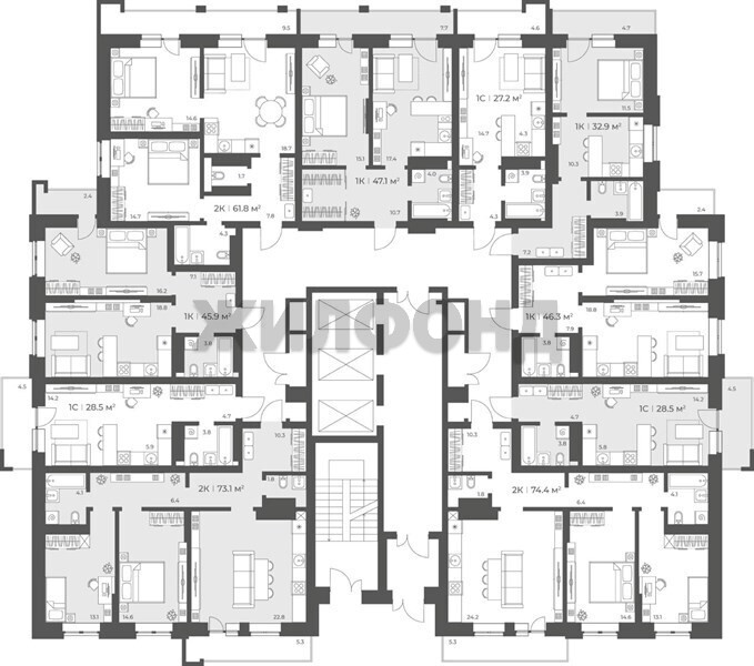
Количество этажей 26

Количество квартир 248

Жилая площадь, м2 11 925

Высота потолков, м 2,7

БЛАГОУСТРОЙСТВО ДВОРА

Велосипедные дорожки Нет

Количество детских площадок 1

Количество спортивных площадок 1

Количество площадок для сбора мусора 1

ПАРКОВОЧНОЕ ПРОСТРАНСТВО

Количество мест в паркинге Нет

Гостевые места на придомовой территории 118

Гостевые места вне придомовой территории Нет

БЕЗБАРЬЕРНАЯ СРЕДА

Наличие пандуса Есть

Наличие понижающих площадок Есть

Количество инвалидных подъемников Нет

НАЛИЧИЕ ЛИФТОВ В ДОМЕ

Количество подъездов 1

Количество пассажирских лифтов 1

Количество грузовых и грузопассажирских лифтов 5

Комплекс состоит из трех 25-этажных зданий, находящихся в Советском районе Новосибирска. Дома располагаются на улице Приморской поблизости от улицы Ивлева и плотины ГЭС. Это место с хорошей транспортной доступностью, откуда можно без труда добраться в любой район Новосибирска на собственном автомобиле и на общественном транспорте. Время поездки до разных станций метро, включая «Речной вокзал», «Студенческую», «Площадь Ленина» и другие занимает около получаса.

В целом комплекс находится в районе с отличной инфраструктурой. В шаговой доступности есть скверы, парки для прогулок и отдыха, магазины с продуктами питания, бытовыми товарами, школы, поликлиника и прочие социально важные объекты. Это место, где много свежего воздуха, тишина и большое количество зелени вокруг сочетаются с комфортными городскими условиями жизни.

У домов комплекса общая территория в формате «без машин» с игровыми площадками для детей всех возрастов, также площадками для отдыха и занятий спортом. Вокруг комплекса предусмотрены открытые общественные стоянки.

Читать полностью
Этаж Квартиры
25
27 м2
5 000 000 ₽
29 м2
5 050 000 ₽
29 м2
5 100 000 ₽
46 м2
6 700 000 ₽
47 м2
6 900 000 ₽
62 м2
8 100 000 ₽
74 м2
10 000 000 ₽
74 м2
10 000 000 ₽
24
46 м2
6 300 000 ₽
47 м2
6 450 000 ₽
74 м2
9 350 000 ₽
23
46 м2
6 300 000 ₽
62 м2
7 900 000 ₽
74 м2
9 300 000 ₽
74 м2
9 300 000 ₽
22
62 м2
7 800 000 ₽
21
74 м2
9 000 000 ₽
20
62 м2
7 700 000 ₽
19
28 м2
4 200 000 ₽
74 м2
8 950 000 ₽
18
46 м2
6 050 000 ₽
62 м2
7 650 000 ₽
17
62 м2
7 650 000 ₽
74 м2
8 800 000 ₽
15
74 м2
8 800 000 ₽
14
74 м2
8 700 000 ₽
11
46 м2
5 900 000 ₽
74 м2
8 500 000 ₽
74 м2
8 600 000 ₽
10
74 м2
8 500 000 ₽
4
74 м2
9 500 000 ₽
keys
Подписка на Жилфонд

Получайте уведомления о свежих новостях в своем браузере