Top.Mail.Ru

Военная, 51

Дом является частью ЖК Тихомиров
Застройщик ООО Строительная компания «Мета-Обская»
Группа компаний ГРУППА МЕТА
Срок сдачи Сдан
Квартир на продажу 23 (посмотреть)

Разрешение на строительство № 54-RU54303000-280-2016 от 23.12.2016

Основные характеристики

Класс недвижимости Бизнес

Материал стен Монолит-кирпич

Тип отделки Под чистовую

Свободная планировка Есть

Количество этажей 33

Количество квартир 518

Жилая площадь, м2 28 071

Высота потолков, м 3,15 - 4,2

Благоустройство двора

Велосипедные дорожки Нет

Количество детских площадок 1

Количество спортивных площадок 1

Количество площадок для сбора мусора 3

Парковочное пространство

Количество мест в паркинге 243

Гостевые места на придомовой территории 43

Гостевые места вне придомовой территории Нет

Безбарьерная среда

Наличие пандуса Нет

Наличие понижающих площадок Есть

Количество инвалидных подъемников Нет

Наличие лифтов в доме

Количество подъездов 2

Количество пассажирских лифтов 2

Количество грузовых

и грузопассажирских лифтов 4

Жилой комплекс «Тихомиров» находится на улице Лескова в 2.3 км. от центра Новосибирска. Состоит из высоток переменной этажности

25 и 29 этажей на 518 квартир, площадью от 37 до 108 кв.м, объединенным административным блоком с общественными пространствами на

первом этаже. Застройщик ООО СК «Мета» ( входит в ГК Мета).

Первая очередь ЖК Тихомиров сдается 4 квартал 2022г. Весь комплекс в 4 квартале 2023 г.

Городская резиденция ЖК «Тихомиров» ( ул. Лескова 17/1) — это удобная и очень перспективная локация, современные инженерные и архитектурные решения,

высокий уровень сервиса для жильцов и отличная возможность для инвестиций.

Преимущества ЖК «Тихомиров»:

Развитая инфраструктура дома и района

Удобные планировки с ливингом – кухней-гостиной для встреч с друзьями

Деревянные евро-окна

8 минут до торгового центра Аура. 12 минут до метро Октябрьская

Паркинг – большая подземная парковка. Предусмотрено 242 подземных и около 30 наземных гостевых парковочных мест

Мойка для животных в холле

Зона ожидания такси – машина будет ожидать вас в специальном месте

Лайфворкинг – это общественная рабочая зона внутри дома

Лобби – продуманный интерьер расположит к приятному общению с соседями и гостями в расслабленной и непринужденной обстановке.

Кладовые от 2 до 8 кв.м– отдельные ячейки, позволяющие хранить вещи жильцов, к которым не нужен частый доступ.

Колясочные и велосипедные – оставляйте свои коляски и велосипеды в удобном и безопасном пространстве, специально созданном для этих целей.

Возводится по монолитно-кирпичной технологии

Огороженная и охраняемая территория с многоуровневым контролем доступа исключают вероятность нахождения внутри

дома или двора посторонних людей.

Читать полностью
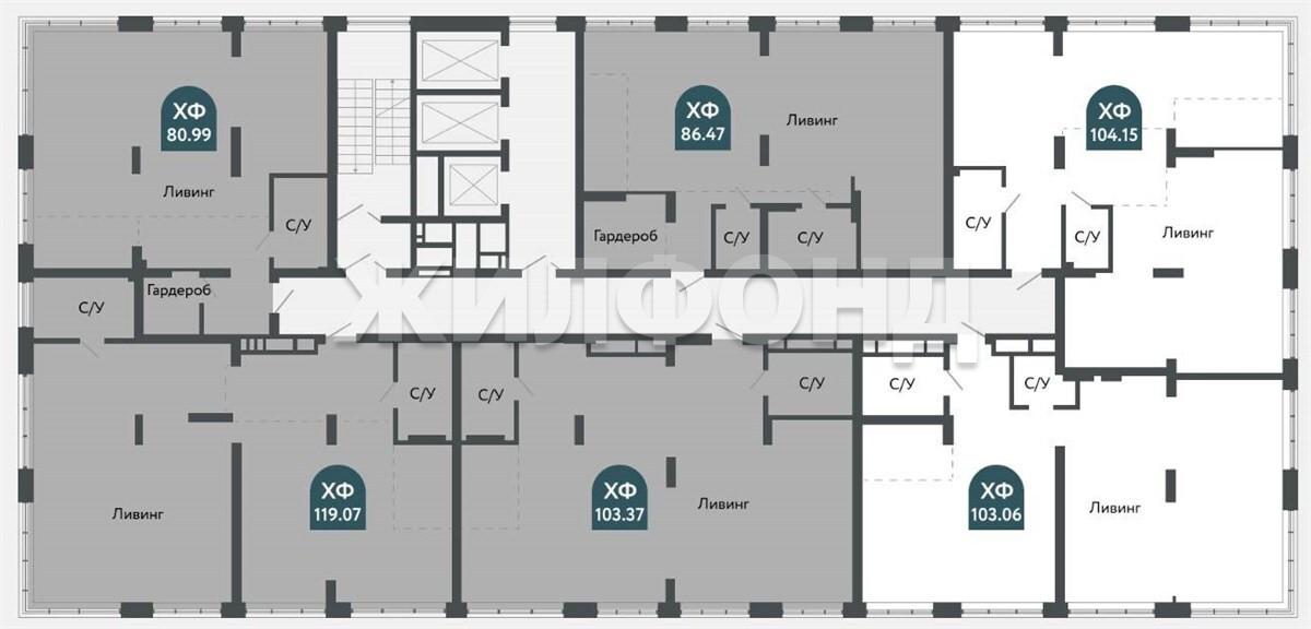
Этаж Квартиры
29
86 м2
24 592 000 ₽
103 м2
27 827 000 ₽
103 м2
28 537 000 ₽
104 м2
29 069 000 ₽
28
103 м2
27 334 000 ₽
26
50 м2
13 463 000 ₽
25
81 м2
23 060 000 ₽
103 м2
27 828 000 ₽
24
86 м2
23 695 000 ₽
103 м2
27 165 000 ₽
119 м2
31 049 000 ₽
23
113 м2
25 321 000 ₽
22
63 м2
15 006 000 ₽
112 м2
23 766 000 ₽
21
63 м2
15 006 000 ₽
18
50 м2
12 494 000 ₽
13
64 м2
14 881 000 ₽
9
63 м2
14 672 000 ₽
8
71 м2
16 639 000 ₽
3
64 м2
14 651 000 ₽
2
65 м2
14 386 000 ₽
71 м2
15 699 000 ₽
72 м2
16 401 000 ₽
keys
Подписка на Жилфонд

Получайте уведомления о свежих новостях в своем браузере