Top.Mail.Ru

Венская, 12 Дом 20 по ГП (12_4)

Дом является частью ЖК Фламинго
Застройщик ООО ГК ЖИЛИЩНАЯ ИНИЦИАТИВА СЗ
Группа компаний Жилищная инициатива
Срок сдачи Сдан
Очередь Дом 20 по ГП (12_4)
Квартир на продажу 22 (посмотреть)

Основные характеристики

Класс недвижимости Комфорт

Материал стен Панель

Тип отделки Без отделки

Свободная планировка Нет

Количество этажей 9

Количество квартир 224

Жилая площадь, м2 11 830

Высота потолков, м 2,7

Благоустройство двора

Велосипедные дорожки Нет

Количество детских площадок 2

Количество спортивных площадок 2

Количество площадок для сбора мусора 1

Парковочное пространство

Количество мест в паркинге Нет

Гостевые места на придомовой территории 28

Гостевые места вне придомовой территории 51

Безбарьерная среда

Наличие пандуса Есть

Наличие понижающих площадок Есть

Количество инвалидных подъемников Нет

Наличие лифтов в доме

Количество подъездов 4

Количество пассажирских лифтов 4

Количество грузовых и грузопассажирских лифтов Нет

Жилой комплекс представляет собой комплексную малоэтажную застройку в 4-8 этажей, состоящую из 30 корпусов. Фасады домов выполнены в пастельных тонах с применением яркого цветового акцента. В каждой секции сделана установлены отечественные грузопассажирские лифты.

В жилом комплексе предложено множество планировочных решений — от однокомнатных до 3-х комнатных квартир как классического типа, так и европланировки. Сдаются квартиры с подчистовой отделкой, стандартными окнами высотой потолков 2.7 метра.

Въезд на территорию жилого комплекса ограждает шлагбаум, также установлен пункт охраны. Периметр микрорайона огорожен, ведется видеонаблюдение. Внутренние дворы закрыты от машин. Дворовая зона оборудована детскими игровыми комплексами, организованы огороженные спортивные площадки, пешеходные тротуары и места отдыха со скамейками. Территория озеленена газонами, деревьями и кустарниками. На территории микрорайона работает частный детский сад и предусмотрена своя школа. Для владельцев автомобилей предусмотрена стоянка.

Читать полностью
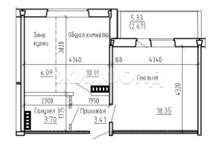
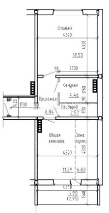
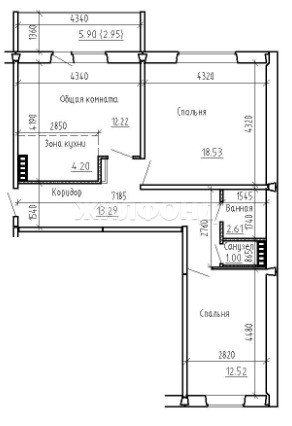
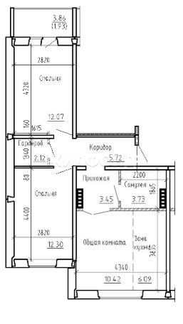
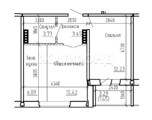
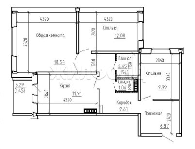
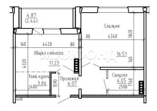
Этаж Квартиры
8
50 м2
5 300 000 ₽
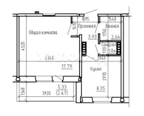
7
41 м2
4 900 000 ₽
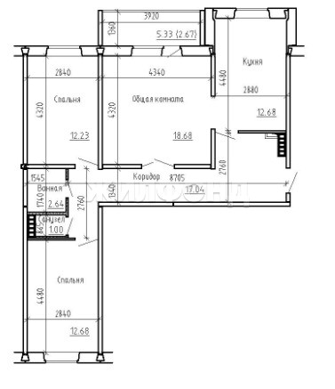
50 м2
5 400 000 ₽
50 м2
5 400 000 ₽
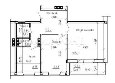
51 м2
5 500 000 ₽
6
41 м2
4 900 000 ₽
50 м2
5 400 000 ₽
51 м2
5 500 000 ₽
5
50 м2
5 400 000 ₽
50 м2
5 400 000 ₽
51 м2
5 500 000 ₽
4
50 м2
5 400 000 ₽
50 м2
5 400 000 ₽
3
50 м2
5 400 000 ₽
50 м2
5 400 000 ₽
2
50 м2
5 400 000 ₽
50 м2
5 400 000 ₽
51 м2
5 500 000 ₽
1
42 м2
4 900 000 ₽
40 м2
4 800 000 ₽
50 м2
5 300 000 ₽
51 м2
5 400 000 ₽
keys
Подписка на Жилфонд

Получайте уведомления о свежих новостях в своем браузере