Top.Mail.Ru

Венская, 11 Дом 19 по ГП (11_2)

Дом является частью ЖК Фламинго
Застройщик ООО ГК ЖИЛИЩНАЯ ИНИЦИАТИВА СЗ
Группа компаний Жилищная инициатива
Срок сдачи Сдан
Очередь Дом 19 по ГП (11_2)
Квартир на продажу 8 (посмотреть)

Разрешение на ввод №54-19-71-2022 от 27.09.2022

Основные характеристики

Класс недвижимости Комфорт

Материал стен Кирпич

Тип отделки 1 вариант

Свободная планировка Нет

Количество этажей 9

Количество квартир 224

Жилая площадь, м2 11 830

Высота потолков, м 2,7

Благоустройство двора

Велосипедные дорожки Нет

Количество детских площадок 2

Количество спортивных площадок 2

Количество площадок для сбора мусора 1

Парковочное пространство

Количество мест в паркинге Нет

Гостевые места на придомовой территории 28

Гостевые места вне придомовой территории 51

Безбарьерная среда

Наличие пандуса Есть

Наличие понижающих площадок Есть

Количество инвалидных подъемников Нет

Наличие лифтов в доме

Количество подъездов 4

Количество пассажирских лифтов 4

Количество грузовых

и грузопассажирских лифтов Нет

Жилой комплекс представляет собой комплексную малоэтажную застройку в 4-8 этажей, состоящую из 30 корпусов. Фасады домов выполнены в пастельных тонах с применением яркого цветового акцента. В каждой секции сделана установлены отечественные грузопассажирские лифты.

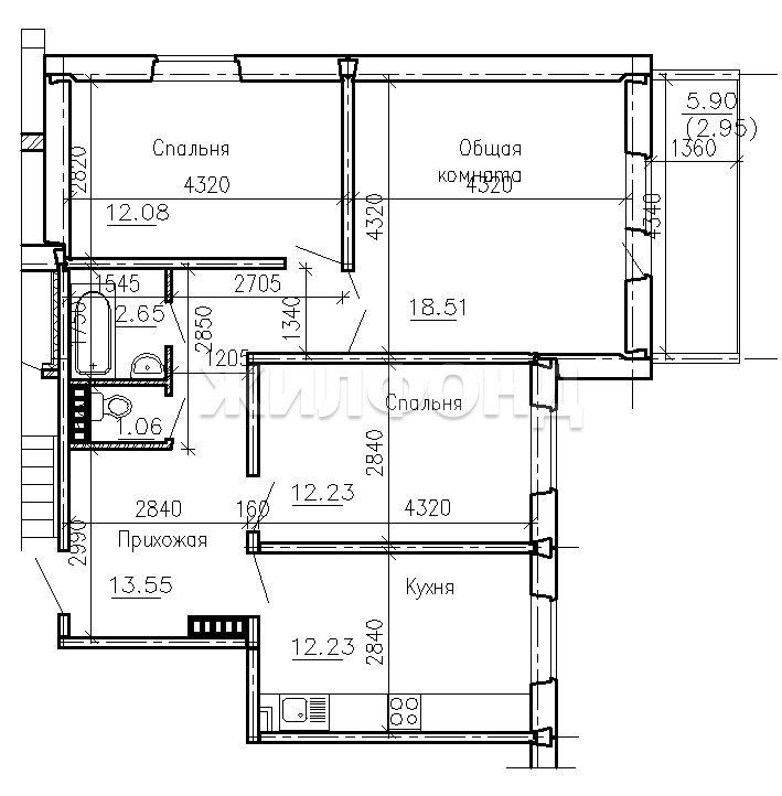
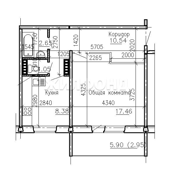
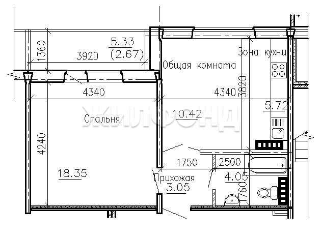
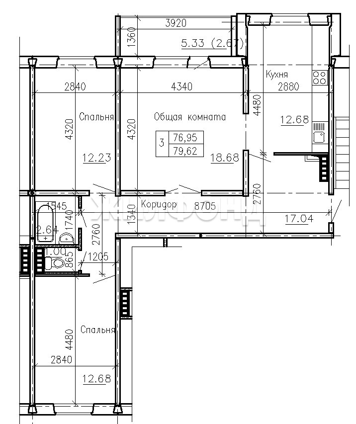
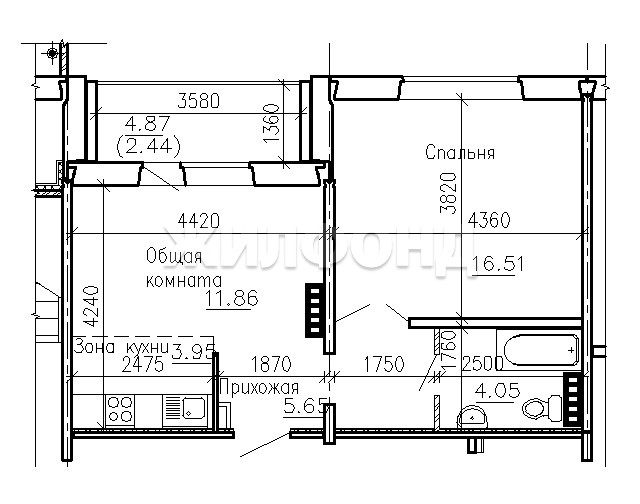
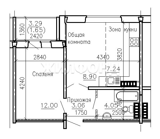
В жилом комплексе предложено множество планировочных решений — от однокомнатных до 3-х комнатных квартир как классического типа, так и европланировки. Сдаются квартиры с подчистовой отделкой, стандартными окнами высотой потолков 2.7 метра.

Въезд на территорию жилого комплекса ограждает шлагбаум, также установлен пункт охраны. Периметр микрорайона огорожен, ведется видеонаблюдение. Внутренние дворы закрыты от машин. Дворовая зона оборудована детскими игровыми комплексами, организованы огороженные спортивные площадки, пешеходные тротуары и места отдыха со скамейками. Территория озеленена газонами, деревьями и кустарниками. На территории микрорайона работает частный детский сад и предусмотрена своя школа. Для владельцев автомобилей предусмотрена стоянка.

Читать полностью
Этаж Квартиры
7
45 м2
5 400 000 ₽
64 м2
7 100 000 ₽
82 м2
8 500 000 ₽
5
43 м2
5 300 000 ₽
82 м2
8 500 000 ₽
4
43 м2
5 300 000 ₽
1
64 м2
7 000 000 ₽
82 м2
8 500 000 ₽
keys
Подписка на Жилфонд

Получайте уведомления о свежих новостях в своем браузере